You've come to the right place

At Woodland Places, we’re dedicated to making homeownership simple and affordable by offering affordable homes with modern home designs. Our quality manufactured homes and services ensure that your new home is move-in ready, making it easy to explore new properties in the real estate market!

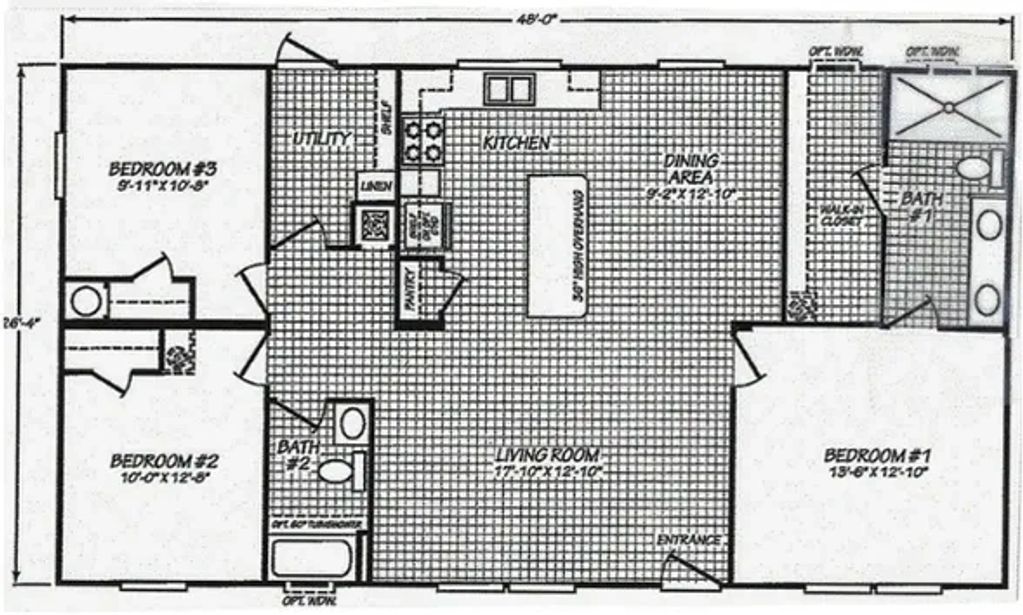
Experience the comfort of modern manufactured living in a brand-new 3-bed, 2-bath, 1,265-square-foot home designed for convenience and quality.
BRAND NEW HOME
112 Highland Drive, Hawthorne, Florida
READY FOR ITS FIRST OWNERS
Anticipated completion: December 31, 2025
PROMOTIONAL OFFER
ONLY $199,000
(Pre-construction pricing – valid until October 31, 2025)
ESTIMATED FINAL PRICE
$220,000

KITCHEN
Modern, open-concept kitchen designed for both function and style.

ENTRANCE AND LIVING AREA
Inviting entry opens to a bright, open living space.

BATHROOMS
Clean, practical bathrooms with modern touches.

BEDROOMS
Comfortable, private rooms designed for rest and relaxation.

Thoughtfully designed for modern living in a peaceful Hawthorne setting.
Step inside and see why this could be the perfect home!

BRAND NEW HOME
210 Wallace Street, Interlachen
Features
Size
1700 sq. ft. (or larger) on a .43 acre lot
CUSTOM-BUILT TO SUIT YOUR NEEDS
We connect you with trusted lenders who offer competitive rates and flexible options to make buying your next property easier and more affordable.

Need financing for a manufactured home? Contact us to explore trusted lender options tailored for you.
Secure your property with reliable insurance partners who provide coverage tailored to homes, land, and manufactured housing. Peace of mind, from day one.

Protecting your manufactured home starts here — reach out for details on reliable insurance coverage.

At WoodlandPlaces.com, we specialize in providing affordable homes, including high-quality new and lightly used manufactured homes at an accessible price. Many of our new properties feature modern home designs with split-floor plans and open-concept living. The master suites may include walk-in closets, contemporary kitchens with walk-in pantries, and master baths equipped with various garden tubs and walk-in showers.
Alternatively, you can select a lot from our inventory or suggest a location you prefer. We will add the utility infrastructure, landscaping, driveway, and other features you need to truly call it HOME. All our new homes are rated Wind Zone 2 or above.

"At Woodland Places, we believe that real estate is more than just transactions; it’s about building relationships and creating affordable homes with modern home designs for families in our new properties."

"For us, it’s not just about selling affordable homes — it’s about helping people find a modern home where memories can be made, whether it's a new home or exploring new properties in the real estate market."
Reach out to us today to learn more about our affordable homes, modern home designs, available lots, or how we can help you find the perfect fit.
Copyright © 2025 Woodland Places – All Rights Reserved.
We use cookies to analyze website traffic and optimize your website experience. By accepting our use of cookies, your data will be aggregated with all other user data.